499 Traeger CLOSE, Saskatoon, Saskatchewan, S7V 1Z5
600 600 $No. MLS® SK025285
Maison À vendre à Brighton, Saskatoon, Saskatchewan
600 600 $
3
Chambres
3
Salles de bain
-
4284.00 Pieds carrés
Dimension du terrain
Remarques :
(id:27)
Particularités du bâtiment :
- Style: Maison détachée
- Type de bâtiment: Unifamiliale
- État du sous-sol: Non aménagé
- Stationnement: Oui
- Surface utile: 1571 sqft
- Type d'architecture: 2 étages
- Type de sous-sol: Sous-sol complet
- Type de chauffage: Air pulsé
- Combustible de chauffage: Gaz naturel
- Électroménagers: Télécommande(s) d'ouvre-porte de garage, Aspirateur central préinstallé
Caractéristiques :
- Type de possession: Tenure franche
- Type de propriété: Unifamiliale
- Bâti en: 2025
- Caractéristiques: Rectangulaire, Pompe de vidange
- Chambres : 3
- Dimensions du terrain : 4284.00 Pieds carrés
- Salle(s) de bains : 3
- Superficie habitable (approx): 1571 Pieds carrés
- Type de stationnement: Garage attenant, Places de stationnement
- Nbre d'espaces de stationnement: 4
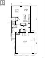
Détails des pièces :
- Autre 2e niveau 3.86 m x 4.06 m 12.67 p x 13.33 p
- Chambre principale 2e niveau 4.24 m x 3.66 m 13.92 p x 12.00 p
- Salle de bains 2e niveau x x x
- Chambre 2e niveau 3.10 m x 2.77 m 10.17 p x 9.08 p
- Chambre 2e niveau 3.40 m x 2.79 m 11.17 p x 9.17 p
- Salle de lavage 2e niveau x x x
- Hall d'entrée Niveau rez-de-chaussée x x x
- Cuisine Niveau rez-de-chaussée 3.89 m x 3.43 m 12.75 p x 11.25 p
- Salle à dîner Niveau rez-de-chaussée 2.92 m x 2.90 m 9.58 p x 9.50 p
- Salon Niveau rez-de-chaussée 3.68 m x 3.51 m 12.08 p x 11.50 p
- Salle de bains Niveau rez-de-chaussée x x x
Gracieuseté de : Boyes Group Realty Inc.
Le contenu des inscriptions fournies par REALTOR.ca a été autorisé par les membres de l'Association canadienne de l'immeuble.
Le contenu de cette inscription est fourni par REALTOR.ca et a été autorisé par les membres de l'Association canadienne de l'immeuble.
Photos supplémentaires

