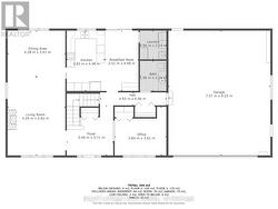
201 CHURCH STREET N, Wellington North (Mount Forest), Ontario, N0G 2L0
895 000 $No. MLS® X12360106
Photos supplémentaires
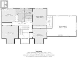
201 CHURCH STREET N, Wellington North (Mount Forest), Ontario, N0G 2L0
895 000 $No. MLS® X12360106
Photos supplémentaires
















































