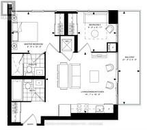
3304 - 7895 JANE STREET, Vaughan, Ontario, L4K 2M7
579 000 $No. MLS® N12460408
Le contenu de cette inscription est fourni par REALTOR.ca et a été autorisé par les membres de l'Association canadienne de l'immeuble.
Photos supplémentaires



















