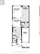
837 DERREEN AVENUE, Ottawa, Ontario, K2S 3A7
799 000 $No. MLS® X12598242
Le contenu de cette inscription est fourni par REALTOR.ca et a été autorisé par les membres de l'Association canadienne de l'immeuble.
Photos supplémentaires








































