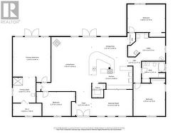
11441 LEVERE ROAD, North Dundas, Ontario, K0E 1S0
499 000 $No. MLS® X12638546
Le contenu de cette inscription est fourni par REALTOR.ca et a été autorisé par les membres de l'Association canadienne de l'immeuble.
Photos supplémentaires












































