LW 13 205 Lewis Drive, Bedford, NS, B4B 0L3
859 900 $No. MLS® 202529242
Maison À vendre à Bedford, Nouvelle-Écosse
4
Chambres
3
Salles de bain
-
Oui
Foyer
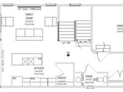
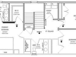
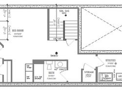
**Ready to move in by February 28, 2026** Introducing The Bellmore, a beautifully crafted 4-bedroom, 3.5-bath detached home by Shaughnessy Homes in Belle Rose Park, West Bedford. Spanning 2,537 sq. ft. across three finished levels on a 34’ lot, this home blends modern style with everyday functionality. The main floor features an open-concept layout with a designer kitchen boasting a walk-in pantry, premium quartz countertops, and soft-close cabinetry. A stylish dining room bump-out adds a touch of elegance, perfect for gatherings. Engineered hardwood flows through the main and upper levels, complemented by an electric fireplace in the living area. Step outside to a beautifully finished composite deck, providing long-lasting durability with low maintenance. The finished WALKOUT basement is equipped with a wet bar, large bedroom, full bathroom and a spacious rec room perfect for extended family members. This home includes a fully ducted heat pump with natural gas backup, plus rough-ins for a gas range, dryer, BBQ, water heater, and a 50 AMP EV charger. Nestled off Larry Uteck Blvd in the serene Belle Rose Park, this home is steps from schools, parks, and amenities. Built with Shaughnessy Homes’ signature quality, The Bellmore is a rare find in one of Bedford’s most desirable communities.
Caractéristiques :
- Caractéristiques: Salle de bain attenante, Ventilateur-récupérateur de chaleur, Foyer électrique
- Caractéristiques Communautaires: Parc, Terrain de jeux, Centre récréatif, Service d'autobus scolaire, Commerces à proximité
- Caractéristiques du terrain: Aménagement paysager
- Chambres : 4
- Électroménagers Inclus: Aucun
- Entrée de GarageéStationnement: Pavé
- Évacuation des eaux d'égout: Municipal
- Finittion Extérieure: Pierre, Vinyle
- Fondation: Béton
- Matériel de location: Aucun
- Revêtement de Plancher: Bois franc d'ingénierie, Stratifié, Carreaux
- Salle(s) de bains : 3
- Services: Câble, Électricité, Internet haute vitesse, Gaz naturel, Téléphone
- Source d'eau: Municipal
- Sous-sol: Entièrement fini, Entrée directe
- Structures: Terrasse
- Style du bâtiment: 2 étages
- Superficie habitable (approx): 2537 Pieds carrés
- Taille de la propriété: Moins de 0,5 acre
- Titre d'un bien-fonds: Propriété franche
- Toit: Bardeaux d'asphalte
- Type de Carburant: Électrique, Gaz naturel
- Type de Chauffage/Refroidissement: Thermopompe - avec conduit
- Garage: Simple, Attenant, Chauffé, Câblé
Détails des pièces :
- Hall d'entrée Rez-de-chaussé 6.2 x 10.2
- Salle de bains Rez-de-chaussé 2 pc
- Salon Rez-de-chaussé 9x14
- Salle à dîner Rez-de-chaussé 12x8.6
- Cuisine Niveau inférieur 8.1x13.9
- Chambre principale 2e niveau 13x15
- Salle de bain ensuite 2e niveau 5 pc
- Chambre 2e niveau 10.8 x 10.6
- Chambre 2e niveau 10x10.4
- Salle de bains 2e niveau 4 pc
- Salle de lavage 2e niveau 6.8x 5.6
- Salle de divertissement Niveau inférieur 14.4X14.8
- Chambre Niveau inférieur 11.4X11.5
- Salle de bains Niveau inférieur 4 pc
Gracieuseté de : Royal LePage Atlantic
Données fournies par : Nova Scotia Association of REALTORS® 68 Highfield Park Drive, Bureau 112, Dartmouth, Nouvelle-Écosse B3A 0E4
Nous croyons que tous les renseignements affichés sont exacts, mais nous ne le garantissons pas; les renseignements devraient être vérifiés de façon indépendante. Aucune garantie ou représentation de quelque nature que ce soit n’est offerte. Droits © 2021 Tous les droits sont réservés.
Photos supplémentaires


