49 Homestead DR, Hampton, NB, E5N 0J7
549 990 $No. MLS® NB123787
Maison À vendre à Hampton, Nouveau-Brunswick
3
Chambres
3
Salles de bain
-
Oui
Garage
BONUS: HST included in the price!Brand New Semi-Detached Home in Orchard Hills – Move-in ready for mid-December 2025.Designed with growing families in mind, this brand new 3-bed, 3-bath semi-detached home offers the ideal blend of comfort, privacy, and modern style in one of Hampton’s most sought-after neighbourhoods. Teens can easily walk or bike to Hampton High School, located just minutes away—making busy mornings simpler and after-school activities a breeze. The main level features an open-concept layout with quartz countertops, custom cabinetry, and Torlys Premier vinyl plank flooring throughout. Two private patios extend the living space outdoors—great for family barbecues or a quiet place for your family to unwind. The main-floor primary suite includes a private 3/4 ensuite bath, offering parents their own peaceful retreat. A separate half bath on this level adds convenience for family and guests. Upstairs, two generously sized bedrooms and a full bath give kids/teenagers the space and independence they need. Located next to a beautiful walking trail and close to shopping, schools, sports fields, and community amenities, this home places your family in the heart of a friendly, walkable community. Includes a 10-year Lux New Home Warranty for added peace of mind. The driveway will be completed with crushed rock, and the yard will be top soiled and seeded in the spring.. Seller is a licensed REALTOR®.
Particularités du bâtiment :
- Garage: Oui
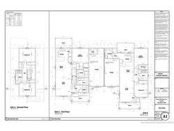
- Superficie totale aménagée: 1674 Pieds carrés
- Surface utile: 1674 Pieds carrés
Caractéristiques :
- Caractéristiques intérieures: Attenant, Salle familiale - Étage principal, Garantie domiciliaire restant, Buanderie - Étage principal, Four à micro-ondes encastré, Chambre principale - Étage principal
- Caractéristiques terrestres: Dégagé
- Chambres : 3+0
- Chauffage / climatisation: Plinthes, Électrique, Thermopompe
- Dimensions de la propriété: Moins de 0,5 acre
- Entrée: Simple
- Extérieur: Vinyle
- Fondation / sous-sol: Béton, Dalle
- Revêtements de sol: Carreau céramique/porcelaine, Vinyle
- Salle(s) de bains : 2+1
- Style de propriété: Jumelé
- Superficie habitable (approx): 1674 Pieds carrés
- Titre darrivée: Propriété franche
- Toiture: Bardeaux d'asphalte
- Eau: Partagées, Puits
Détails des pièces :
- Chambre principale Rez-de-chaussé 4.14 m x 3.68 m 13'7" p x 12'1" p
- Salle de bain ensuite Rez-de-chaussé
- Salle de bains Rez-de-chaussé
- Salle à dîner Rez-de-chaussé 3.99 m x 3.35 m 13'1" p x 11' p
- Salon Rez-de-chaussé 3.99 m x 4.17 m 13'1" p x 13'8" p
- Chambre 2e niveau 4.27 m x 3.43 m 14' p x 11'3" p
- Chambre 2e niveau 4.27 m x 3.56 m 14' p x 11'8" p
- Salle de bains 2e niveau
Gracieuseté de : eXp Realty
Données fournies par : Greater Moncton REALTORS® du Grand Moncton 541 Boul. Ste. George, Moncton, Nouveau-Brunswick E1E 2B6
Nous croyons que tous les renseignements affichés sont exacts, mais nous ne le garantissons pas; les renseignements devraient être vérifiés de façon indépendante. Aucune garantie ou représentation de quelque nature que ce soit n’est offerte. Droits © 2021 Tous les droits sont réservés.
Photos supplémentaires








