22 14th Street W, Vancouver, BC, V5Y 1W6
1 079 500 $No. MLS® R3043457
Maison À vendre à Vancouver, Colombie-Britannique
2
Chambres
1
Salle de bain
-
3267.00 Pieds carrés
Dimension du terrain
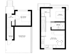
A rare chance to own a fully detached Net Zero coach house in Mount Pleasant—one of Canada’s best neighbourhoods. This 2 bed, 1 bath, 770 sq ft home features a reverse floorplan with bedrooms below and open living above for maximum light and privacy. Built for sustainability, it’s solar powered with airtight construction for year-round comfort and ultra-low energy bills. Interiors include panel-ready Miele appliances, dual 24” fridge/freezer, Dekton counters, custom cabinetry, and Blum hardware. The spa bath offers Porcelanosa tile, custom vanity, and curbless Hansgrohe shower. Solid wood doors, Olivari brass hardware, finished closets, blinds, and stacked Miele laundry reflect quality throughout. Smart home features, landscape lighting, and just 800mto the new SkyTrain.
Particularités du bâtiment :
- Air climatisé: Oui
- Stationnement: Oui
- Surface utile: 771 Pieds carrés
Caractéristiques :
- Appareils ménagers: Laveuse/sécheuse, Lave-vaisselle, Réfrigérateur, Four
- Bâti en: 2025
- Caractéristiques de buanderie: Dans l'unité
- Caractéristiques de la communauté: Centre commercial à proximité
- Caractéristiques de stationnement: Autre
- Caractéristiques du terrain: Emplacement central, Activités récréatives à proximité
- Caractéristiques extérieures: Jardin, Cour privée
- Chambres : 2
- Chauffage: Électrique, Thermopompe
- Dimensions du terrain : 3267.00 Pieds carrés
- Largeur du terrain en façade : 24.75 Pieds
- Niveaux: Deux
- Refroidissement: Climatiseur central, Climatisation
- Salle(s) de bains : 1+0
- Sous-sol: Aucun
- Superficie habitable (approx): 771 Pieds carrés
- Type de structure: Résidence isolée
Gracieuseté de : RE/MAX Select Properties
The data relating to real estate on this web site comes in part from the MLS® Reciprocity program of the Greater Vancouver REALTORS®, the Fraser Valley Real Estate Board or Chilliwack & District Real Estate Board. Real estate listings held by participating real estate firms are marked with the MLS® Reciprocity logo and detailed information about the listing includes the name of the listing agent. This representation is based in whole or part on data generated by the Greater Vancouver REALTORS®, the Fraser Valley Real Estate Board or Chilliwack & District Real Estate Board which assumes no responsibility for its accuracy. The materials contained on this page may not be reproduced without the express written consent of the Greater Vancouver REALTORS®, the Fraser Valley Real Estate Board or Chilliwack & District Real Estate Board.
Photos supplémentaires

