778 000 $

Maison en rangée À vendre à Cloverdale, Surrey, Colombie-Britannique

778 000 $
  • 3

    Chambres

  • 3

    Salles de bain

  • $324.54

    Frais de copropriété

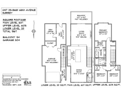
Welcome to Creekside in Clayton, where cozy charm meets family-friendly living. This spacious end-unit townhome offers 1,600 sq ft of well-designed space with 3 bedrooms and 2.5 bathrooms. The open-concept main floor features 9-ft ceilings, a bright and airy layout, and a convenient powder room. The kitchen includes quartz countertops and plenty of room to cook and gather. Upstairs, you'll find three generous bedrooms, including a primary suite with a walk-through closet and a spa-like ensuite with double sinks and a large shower. Step out onto your private deck. Located just steps from shopping, schools, parks, church, and the SkyTrain. The lower level adds a large office, mudroom, tandem garage for 2 vehicles, and an extra outdoor parking spot. Enjoy.

Particularités du bâtiment :

  • Stationnement: Oui
  • Surface utile: 1567 Pieds carrés

Caractéristiques :

  • Taxes annuelles totales: 3 027 $
  • Bâti en: 2014
  • Caractéristiques de la communauté: Centre commercial à proximité
  • Caractéristiques de sécurité: Précâblé, Détecteur(s) de fumée
  • Caractéristiques de stationnement: Tandem, Accès direct, Béton
  • Caractéristiques des fenêtres: Rideaux, Fenêtres isolées
  • Caractéristiques du terrain: Emplacement central, Ceinture verte, Activités récréatives à proximité
  • Caractéristiques extérieures: Cour privée
  • Chambres : 3
  • Chauffage: Électrique
  • Commodités du syndicat: Terrains d'entretien, Déneigement
  • Frais de copropriété : 324 $
  • Niveaux: Trois ou plus
  • Salle(s) de bains : 2+1
  • Sous-sol: Fini
  • Style architectural: 3 étages
  • Superficie habitable (approx): 1567 Pieds carrés
  • Type de structure: Résidence mitoyenne
  • Nbre d'espaces de stationnement: 3

Gracieuseté de : RE/MAX LIFESTYLES REALTY

The data relating to real estate on this web site comes in part from the MLS® Reciprocity program of the Greater Vancouver REALTORS®, the Fraser Valley Real Estate Board or Chilliwack & District Real Estate Board. Real estate listings held by participating real estate firms are marked with the MLS® Reciprocity logo and detailed information about the listing includes the name of the listing agent. This representation is based in whole or part on data generated by the Greater Vancouver REALTORS®, the Fraser Valley Real Estate Board or Chilliwack & District Real Estate Board which assumes no responsibility for its accuracy. The materials contained on this page may not be reproduced without the express written consent of the Greater Vancouver REALTORS®, the Fraser Valley Real Estate Board or Chilliwack & District Real Estate Board.