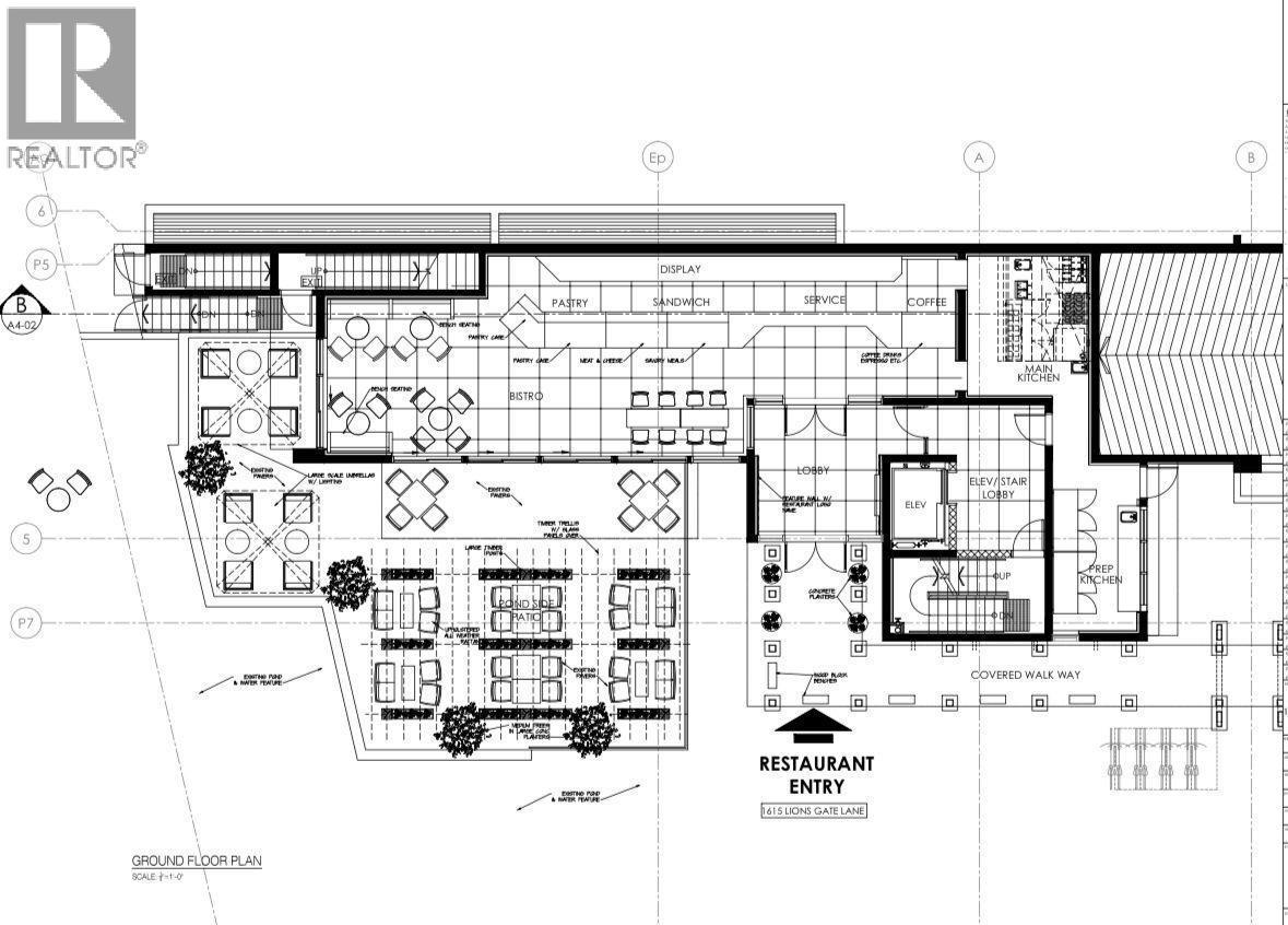
Commercial À louer à Lions Gate, North Vancouver, Colombie-Britannique
300 000.00 $ /annéeNone Chambres
-
Détails
-
Carte
-
Données démographiques
-
Vue de la rue
-
Itinéraire
-
Publicité







































