40 Breccia Drive, Logan Lake, British Columbia, V0K 1W0
428 800 $No. MLS® 10347111
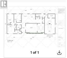
Photos supplémentaires
40 Breccia Drive, Logan Lake, British Columbia, V0K 1W0
428 800 $No. MLS® 10347111
Photos supplémentaires
































