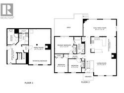
1415 Highland Drive S, Kelowna, British Columbia, V1Y 3W3
849 000 $No. MLS® 10365215
Le contenu de cette inscription est fourni par REALTOR.ca et a été autorisé par les membres de l'Association canadienne de l'immeuble.
Photos supplémentaires























































