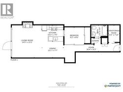
1289 Ellis Street Unit# 212, Kelowna, British Columbia, V1Y 9X6
389 000 $No. MLS® 10365272
Le contenu de cette inscription est fourni par REALTOR.ca et a été autorisé par les membres de l'Association canadienne de l'immeuble.
Photos supplémentaires








































