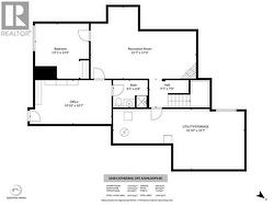
1838 CATHEDRAL Court, Kamloops, British Columbia, V2E 2A7
1 199 000 $No. MLS® 10358726
Le contenu de cette inscription est fourni par REALTOR.ca et a été autorisé par les membres de l'Association canadienne de l'immeuble.
Photos supplémentaires

































































































