220 FOXBOROUGH PLACE, Thames Centre (Thorndale), Ontario, N0M 2P0
$799,900MLS® # X12218988
House For Sale In Thames Centre (Thorndale), Ontario
1
Bedroom
2
Baths
-
47.9 x 147.5 FT
Lot Size
Property Information:
Discover exceptional value in this TO BE BUILT bungalow located in the growing community of Thorndale. Offering 1,360 sq. ft. of thoughtfully designed living space, this home features a bright and airy open concept layout with seamless flow between the kitchen, living, and dining areasperfect for both everyday living and entertaining. Enjoy up-to-date finishes throughout. The spacious primary suite offers a luxurious 5-piece ensuite and generous walk-in closet, while a separate office or flex room provides a quiet space for work or hobbies. With attractive curb appeal, a welcoming front porch, and smart design, this home is an ideal choice for first-time buyers, downsizers, or investors. Located just minutes from London, with easy access to parks, trails, and local amenities, this property offers the perfect balance of small-town charm and modern convenience. Don't miss your chance to own a brand-new home at an affordable price just minutes from London. Photos are from a previous model for illustrative purposes. (id:27)
Building Features:
- Style: Detached
- Building Type: House
- Amenities:
- Architectural Style: Bungalow
- Basement Development: Unfinished
- Basement Type: N/A
- Construction Style - Attachment: Detached
- Exterior Finish: Stucco, Stone
- Fireplace: Yes
- Floor Space: 1100 - 1500 sqft
- Foundation Type: Poured Concrete
- Heating Type: Forced air
- Heating Fuel: Natural gas
- Cooling Type: Central air conditioning
- Appliances: Garage door opener remote
Property Features:
- OwnershipType: Freehold
- Property Type: Single Family
- Bedrooms: 1
- Bathrooms: 2
- Features: Flat site, Sump Pump
- Floor Space (approx): 1100 - 1500 Square Feet
- Irregular: Yes
- Lot Depth: 147.5 Feet
- Lot Frontage: 47.8 Feet
- Lot Size: 47.9 x 147.5 FT
- Utility Type: Hydro - Available, Sewer - Available, Cable - Available
- Zoning: R1-16
- Sewer: Sanitary sewer
- Parking Type: Attached garage, Garage
- No. of Parking Spaces: 2
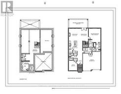
Rooms:
- Office Main Level 2.83 m x 3.35 m 9.28 ft x 10.99 ft
- Bathroom Main Level 2.43 m x 1.52 m 7.97 ft x 4.99 ft
- Kitchen Main Level 4.14 m x 2.95 m 13.58 ft x 9.68 ft
- Living Main Level 3.99 m x 3.96 m 13.09 ft x 12.99 ft
- Dining Main Level 3.99 m x 2.46 m 13.09 ft x 8.07 ft
- Primary Bedroom Main Level 4.75 m x 4.14 m 15.58 ft x 13.58 ft
- Bathroom Main Level 3.00 m x 2.43 m 9.84 ft x 7.97 ft
- Laundry Main Level 3.20 m x 1.88 m 10.50 ft x 6.17 ft
Courtesy of: CENTURY 21 FIRST CANADIAN CORP
This listing content provided by REALTOR.ca has been licensed by REALTOR® members of The Canadian Real Estate Association.
This listing content provided by REALTOR.ca has been licensed by REALTOR® members of The Canadian Real Estate Association.
Additional Photos







