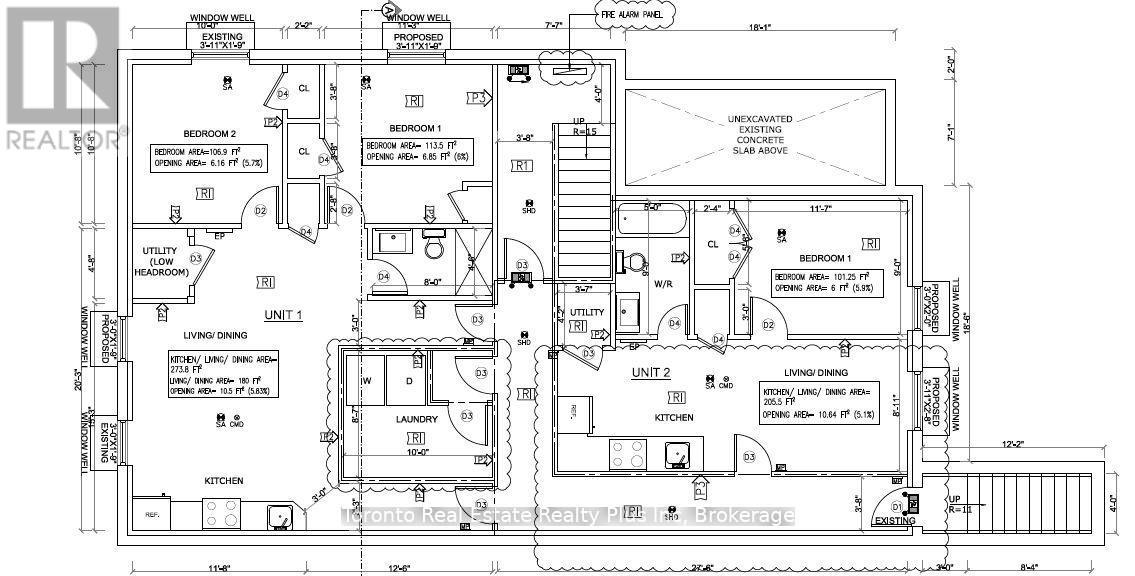
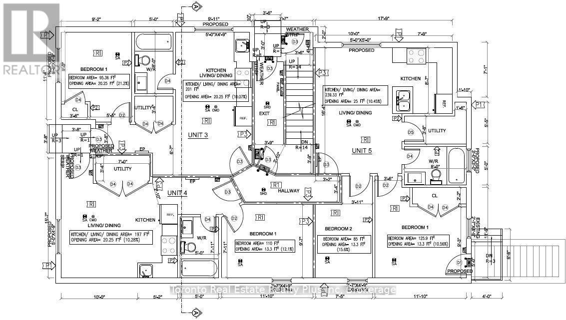
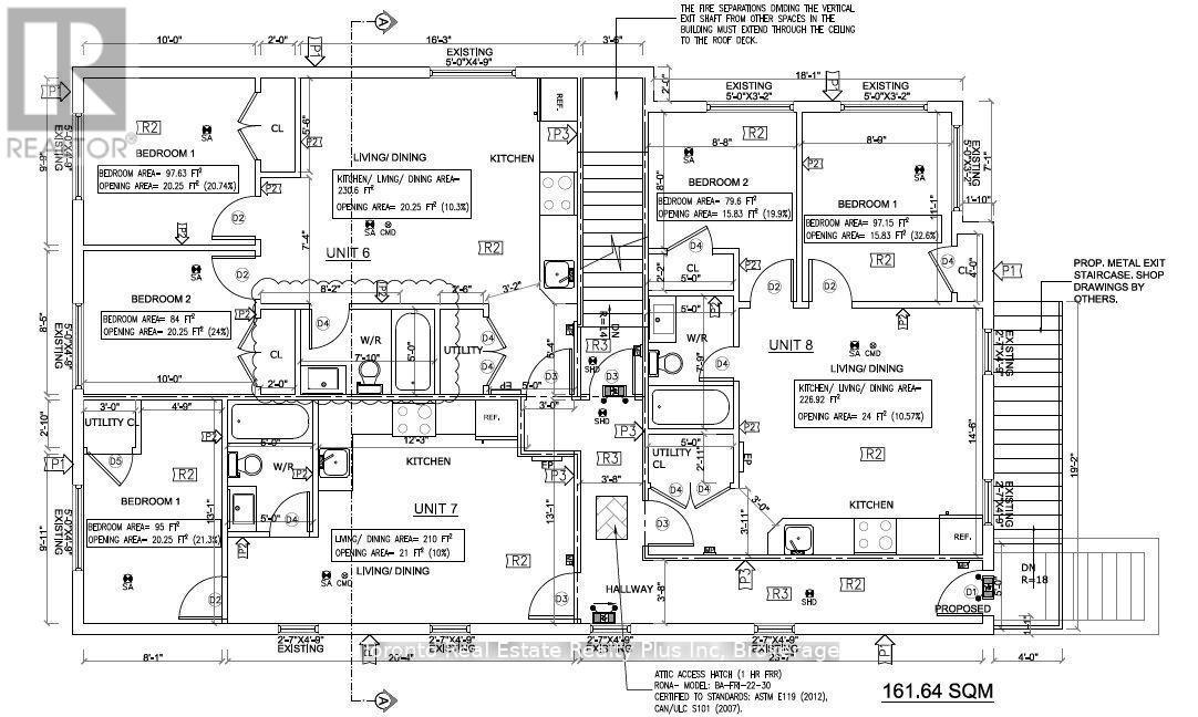
Port Colborne ON, L3K 1W4
MLS® # X12329844
⚠ Potential Investment Performance
There is not enough data on this property to provide a potential investment performance at this time, please click the button below for an in-person valuation






