Kamloops BC, V0E 3E1
Property Information:
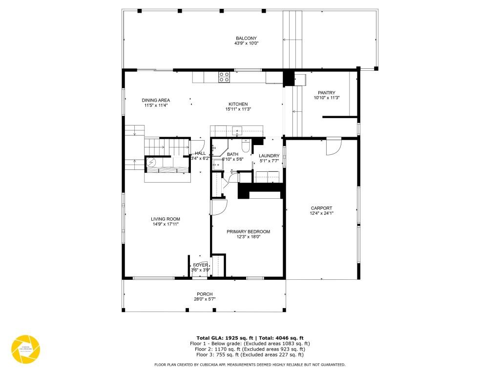
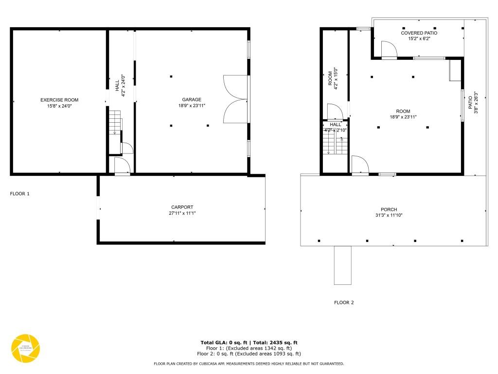
Charming 4-bed, 2-bath home on 2.9 acres in peaceful Pinantan, just 20 minutes to Kamloops. Enjoy an updated kitchen with stainless steel appliances, mixed hardwood and laminate flooring, rich wood trim, and a cozy stone gas fireplace. The home features vinyl double-pane windows, a high-efficiency electric/propane furnace, and a newly added water softener and filtration system (2022). The spacious layout includes an unfinished basement with separate entry—ready for your ideas. Outside, find a large deck, covered patio, dog run, single-car carport, and a detached 2-storey shop for added versatility.
Property Features:
- Bedrooms: 4
- Bathrooms: 2
- Annual Tax Amount: $2,030
- Built in: 1981
- Community Features: Recreation Area
- Construction Materials: Wood Siding, Wood Frame
- Cooling: Central Air
- Exterior Features: Balcony, Private Yard
- Floor Space (approx): 2938 Square Feet
- Flooring: Mixed
- Heating: Forced Air, Propane, Wood
- Lot Size: 2.90 Acres
- Parking Features: Additional Parking, Open
- Roof: Asphalt, Shingle
- View: Mountain(s)
- Water Source: Well
- Waterfront Features: Waterfront
- Sewer: Septic Tank
Rooms:
- Kitchen Main Level 4.95 m x 3.38 m 16.25 ft x 11.08 ft
- Other Basement Level 8.15 m x 10.62 m 26.75 ft x 34.83 ft
- Office 2nd Level 1.35 m x 3.45 m 4.42 ft x 11.33 ft
- Utility Main Level 3.33 m x 3.79 m 10.92 ft x 12.42 ft
- Bedroom 2nd Level 3.81 m x 2.72 m 12.5 ft x 8.92 ft
- Bedroom 2nd Level 4.88 m x 3.38 m 16 ft x 11.08 ft
- Other 2nd Level 3.07 m x 5.56 m 10.08 ft x 18.25 ft
- Storage Basement Level 3.89 m x 2.03 m 12.75 ft x 6.67 ft
- Laundry Main Level 1.50 m x 2.36 m 4.92 ft x 7.75 ft
- Primary Bedroom Main Level 3.76 m x 5.43 m 12.33 ft x 17.83 ft
- Living Main Level 4.52 m x 7.44 m 14.83 ft x 24.42 ft
- Dining Main Level 3.43 m x 3.38 m 11.25 ft x 11.08 ft
- Bathroom 2nd Level .00 m x .00 m 0 ft x 0 ft
- Bathroom Main Level .00 m x .00 m 0 ft x 0 ft
- Bedroom 2nd Level 4.88 m x 2.80 m 16 ft x 9.17 ft
Convert Measurement to:
This listing content provided by Brokers PlaybookTM
Market Price Trends
Location of 2932 PIVA Road, Kamloops, BC, V0E 3E1
Demographic Information of 2932 PIVA Road, Kamloops, BC, V0E 3E1
Life Stage
Families with TweensEmployment Type
Blue Collar/Primary, Blue Collar/Service SectorAverage Household Income
$121,376.65Average Number of Children
1.90Household Population
Household Structure
Age of Population
Education
Education Level
No certificate/diploma/degree
12.46 %High school certificate or equivalent
41.84 %Apprenticeship trade certificate/diploma
19.95 %College/non-university certificate
21.0 %University certificate (below bachelor)
0.06 %University Degree
4.69 %Commuter
Travel To Work
By Car
95.02 %By Public Transit
0.0 %By Walking
0.0 %By Bicycle
0.0 %By Other Methods
4.98 %Cultural Diversity
Knowledge of Official Language
Mother Tongue
Building Information
Building Type
Apartments (Low and High Rise)
0.08 %Houses
99.92 %








































































