Button CopyPathCircle CloseCircle Left ArrowArrow Down Icon GreyClosecirclecircleBurger
Image 1
Image 2
Image 3
$799,500

1+2 Beds

3 Baths

1487 FEETSQ

QuickQuoteTM: Not Available

Olds AB, T4H 0G2

MLS® # A2264969

Property Information:

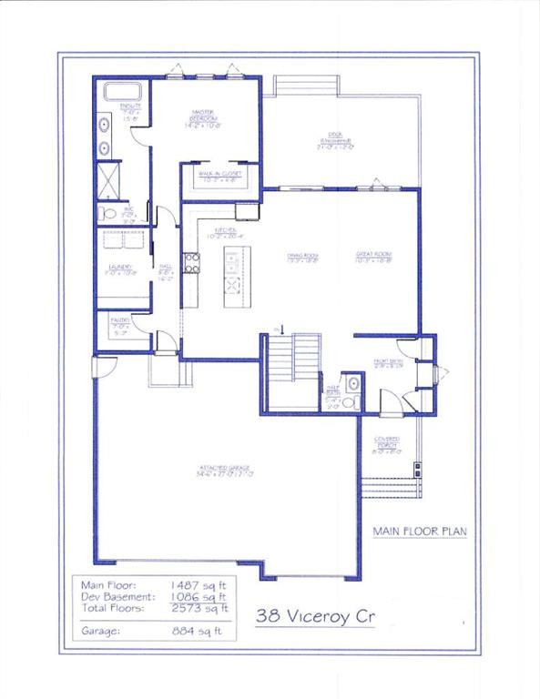
Coming soon from Homes by Westwind, one of the most reputable builders in Olds, this beautiful new home in The Vistas will offer over 2,500 sq. ft. of thoughtfully designed living space. Known for their exceptional quality, design, and functionality, Homes by Westwind delivers craftsmanship that stands the test of time. Construction is set to begin shortly, with estimated completion in 6–8 months.This fully finished bungalow is designed for comfort, practicality, and timeless appeal. The main level will feature a spacious open-concept layout with a large kitchen, dining, and living area that flows seamlessly to the back deck. The kitchen will include quartz countertops, a generous island, full-height cabinets with valance and crown molding, and a walk-in pantry. The primary bedroom offers a 5-piece ensuite and walk-in closet with sliding barn doors, while the main floor laundry room and built-in entryway storage add everyday convenience.The finished lower level will include two additional bedrooms, a 4-piece bathroom, and a large family room with a cozy nook that can be converted into a fourth bedroom or office (optional upgrade). A spacious utility/storage area will also have washer/dryer hookups for added flexibility.The exterior will feature durable Hardie Board siding, 25-year architectural shingles, a welcoming front porch, and an expansive rear deck. A triple attached garage provides ample parking, and the generous lot offers space for a beautifully landscaped yard—or the option to have the builder add a second detached 24 X 24 garage as an upgrade.High-quality finishes throughout will include luxury vinyl plank flooring, plush carpeting, and a premium 5-piece Frigidaire Gallery appliance package.Buyers who get in early will have the opportunity to personalize the finishes and details, creating a home that truly reflects their own style.

Inclusions: N/A

Building Features:

  • Garage: Yes
  • Total Finished Area: 1487.00

Property Features:

  • Bedrooms: 1+2
  • Bathrooms: 2+1
  • Architectural Style: Bungalow
  • Built in: 2026
  • Construction Materials: Composite Siding, See Remarks, Wood Frame
  • Cooling: None
  • Exterior Features: None
  • Floor Space (approx): 1487.00 Square Feet
  • Flooring: Carpet, Tile
  • Foundation Details: Poured Concrete
  • Heating: Forced Air, Natural Gas
  • Interior Features: Built-in Features, Double Vanity, Kitchen Island, Open Floorplan, Pantry, See Remarks, Walk-In Closet(s)
  • Irregular: Yes
  • Levels: One
  • Lot Size: 8403.00 Square Feet
  • Parking Features: Driveway
  • Roof: Asphalt Shingle
  • Zoning: R1
  • No. of Parking Spaces: 6

Courtesy of: Quest Realty

Data provided by: Calgary Real Estate Board 300 Manning Rd. NE, Calgary, Alberta T2E 8K4
All information displayed is believed to be accurate but is not guaranteed and should be independently verified. No warranties or representations are made of any kind. Copyright© 2021 All Rights Reserved

QuickQuoteTM Powered by RPS

Location of 38 Viceroy Crescent, Olds, AB, T4H 0G2

Demographic Information of 38 Viceroy Crescent, Olds, AB, T4H 0G2

Life Stage

Older Parents, Younger Kids

Employment Type

Mixed

Average Household Income

$126,400.00

Average Number of Children

1.80

Household Population

Household Structure

Age of Population

Education

Education Level

No certificate/diploma/degree

22.93 %

High school certificate or equivalent

32.11 %

Apprenticeship trade certificate/diploma

8.26 %

College/non-university certificate

21.56 %

University Degree

15.14 %

Commuter

Travel To Work

By Car

93.27 %

By Public Transit

0.0 %

By Walking

6.73 %

By Bicycle

0.0 %

By Other Methods

0.0 %

Cultural Diversity

Knowledge of Official Language

Mother Tongue

Building Information

Building Type

Apartments (Low and High Rise)

19.11 %

Houses

80.89 %

Own Vs. Rent